top of page

COMMERCIAL BUILDING

Revit advance class
COMMERCIAL 3.jpg

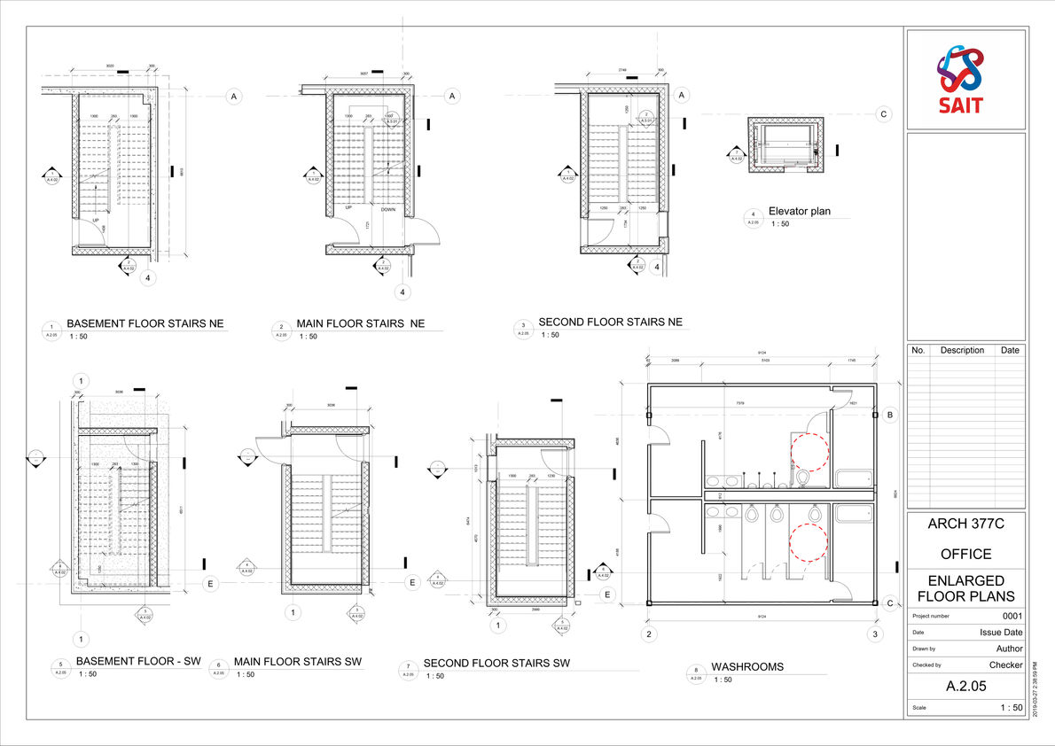
The client wishes were to design a two-story commercial building and use Revit to create working drawings. There was a great focus on detailing of working drawings for this project.

Construction Documents

bottom of page